不動産コンサルティング・相続・賃貸・売買など幅広くサポート

LINE

048-522-1112

営業時間:9:30~17:30 (日曜定休)

メールでのお問合せはこちら

トップページ › 駐車場一覧 › 00439:熊谷市本石1丁目154番 福田駐車場の物件詳細

  • 最近見た物件
  • お気に入り物件

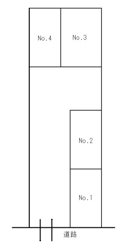
00439:熊谷市本石1丁目154番 福田駐車場の物件詳細

00439:熊谷市本石1丁目154番 福

[お問合せ番号] 00439

情報更新日:2023年10月31日

最寄り駅 徒歩
住所
賃料
管理・共益費
敷金
礼金
仲介手数料
車幅
奥行
高さ
大型車
外車
ハイルーフ
秩父鉄道秩父本線 『上熊谷駅』 徒歩11分
埼玉県熊谷市本石1丁目154
0.55万円
なし
敷:なし
礼:なし
仲:1.1ヶ月
幅:-
奥:-
高:-
大:-
外:-
ハ:-
お気に入りにする 印刷用ページ
048-522-1112
お問合せ 空室確認・下見依頼など
前へ 次へ

拡大する

物件概要

物件名 00439:熊谷市本石1丁目154番 福田駐車場
その他料金
舗装状況 砂利 前面道路 現況
屋内外 屋根 シャッター
防犯カメラ 保証人 駐車場形態
特記事項
備考
更新日 2023年10月31日 情報有効期限 2023年11月14日
お問合せ番号 00439 取引形態 仲介 業者付け

※各種情報と現状に差異がある場合は、現状優先となります。

お問合せ 空室確認・下見依頼など

物件周辺地図