不動産コンサルティング・相続・賃貸・売買など幅広くサポート

LINE

048-522-1112

営業時間:9:30~17:30 (日曜定休)

メールでのお問合せはこちら

トップページ › 駐車場一覧 › 01423:すえひろパーク曙町1丁目の物件詳細

  • 最近見た物件
  • お気に入り物件

01423:すえひろパーク曙町1丁目の物件詳細

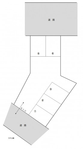
01423:すえひろパーク曙町1丁目

熊谷市曙町1-68-3

[お問合せ番号] 01423

情報更新日:2024年11月01日

最寄り駅 徒歩
住所
賃料
管理・共益費
敷金
礼金
仲介手数料
車幅
奥行
高さ
大型車
外車
ハイルーフ
JR高崎線 『熊谷駅』 徒歩4分
埼玉県熊谷市曙町1丁目
0.6万円
なし
敷:-
礼:-
仲:1.1ヶ月
幅:-
奥:-
高:-
大:-
外:-
ハ:-
お気に入りにする 印刷用ページ
048-522-1112
お問合せ 空室確認・下見依頼など
前へ 次へ

拡大する

物件概要

物件名 01423:すえひろパーク曙町1丁目
その他料金 ※初回保証料…賃料1ヶ月分
※月次保証料…賃料の税抜き価格の8%+80 円(税別)
※更新費用…賃料の税抜き価格の8%(税別)
舗装状況 未舗装 前面道路 現況
屋内外 屋根 シャッター
防犯カメラ 保証人 駐車場形態
特記事項
備考
更新日 2024年11月01日 情報有効期限 2024年11月15日
お問合せ番号 01423 取引形態 貸主 業者付け

※各種情報と現状に差異がある場合は、現状優先となります。

お問合せ 空室確認・下見依頼など

物件周辺地図